Search Properties

Sunningdale Drive, Milford Haven, SA73 3SA

Milford Haven

£160,000 Offers Over

Department:
Sales
Reference No.:
29992305
Postcode:
SA73 3SA
Type:
End of Terrace House
Availability:
Sold STC
Bedrooms:
3
Bathrooms:
2
Receptions:
2
Tenure:
Freehold
Location:
Milford Haven
Price:
£160,000 Offers Over

Property features

  • Three-bedroom end-of-terrace home with en suite to the master bedroom.
  • Spacious kitchen/dining area plus conservatory providing additional living space.
  • Off-street parking to the side and low-maintenance enclosed rear garden.
  • Ideal first-time purchase, investment opportunity or downsizing option.

Summary

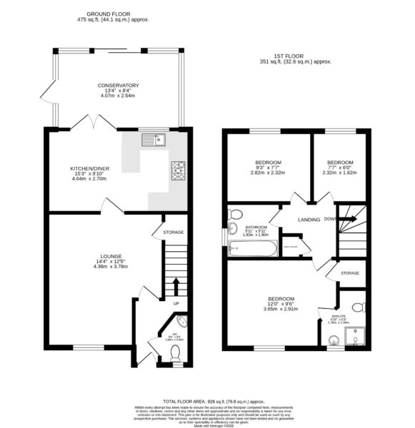
Situated on the ever-popular Sunningdale Drive in Hubberston, this well-presented three-bedroom end-of-terrace property offers an excellent opportunity for first-time buyers, investors or those looking to downsize in the heart of Pembrokeshire. The accommodation is well balanced and arranged over two floors, comprising an inviting entrance hall, convenient ground floor WC, comfortable lounge and a spacious kitchen/dining area ideal for modern family living, which flows through to a conservatory overlooking the rear garden and providing additional reception space.

To the first floor are three bedrooms, including a master bedroom benefiting from its own en suite shower room, a second double bedroom, a single bedroom suitable as a nursery or home office, and a family bathroom. Externally, the property enjoys off-street parking to the side and an enclosed, low-maintenance rear garden, perfect for those seeking outside space without extensive upkeep. Combining practical living space with a sought-after residential location, this attractive home represents a superb purchase for a range of buyers.

Council Tax Band - "C" = £1,820.58

EPC Rating - B

Details

Entrance Hall

Lounge
14' 4" x 12' 5" (4.37m x 3.78m)

Kitchen / Dining Area
15' 3" x 8' 10" (4.65m x 2.69m)

Conservatory
13' 4" x 8' 4" (4.06m x 2.54m)

Bedroom
12' 0" x 9' 6" (3.66m x 2.90m)

En Suite Shower Room
5' 10" x 5' 3" (1.78m x 1.60m)

Bedroom
9' 3" x 7' 7" (2.82m x 2.31m)

Bedroom
7' 7" x 6' 0" (2.31m x 1.83m)

Bathroom
5' 11" x 5' 11" (1.80m x 1.80m)

Floor Plans

EPC

Request Further Details

Or arrange a viewing