Search Properties

The Ridgeway, Saundersfoot, SA69 9LA

Pembrokeshire

£150,000 Offers Over

Department:
Sales
Reference No.:
30176942
Postcode:
SA69 9LA
Type:
Land
Availability:
For Sale
Bedrooms:
3
Bathrooms:
2
Receptions:
2
Location:
Pembrokeshire
Price:
£150,000 Offers Over

Property features

  • Rare opportunity to acquire a spacious building plot within Saundersfoot village.
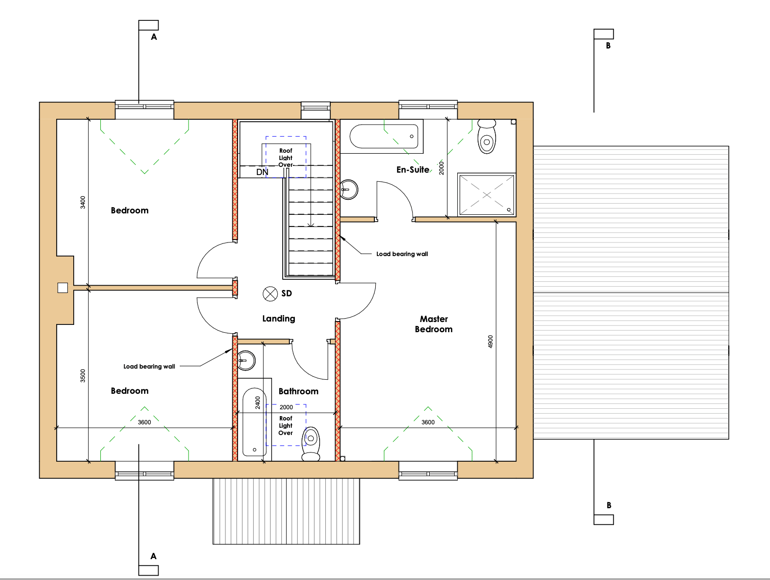
  • Full planning permission in place for a three-bedroom detached home.
  • Sought-after Ridgeway location offering peace and privacy while remaining walkable to the village.
  • Generous plot size providing excellent scope for a substantial, high-quality build.

Summary

An exciting and increasingly rare opportunity to acquire a spacious building plot in the highly sought-after coastal village of Saundersfoot, with full planning permission already in place for a three-bedroom detached home.

Situated on The Ridgeway, the plot enjoys an enviable position just a short walk from the heart of the village, offering the perfect balance of convenience and tranquillity. Tucked away from the main hustle and bustle, the location provides a peaceful setting while still allowing easy access to Saundersfoot’s beautiful beach, harbour, shops, cafés and restaurants.

The plot itself is generously sized, offering excellent scope to create a substantial and well-designed detached property, ideal as a primary residence, holiday home or investment.

With planning permission already granted, this is a turnkey opportunity for buyers looking to build their own home in one of Pembrokeshire’s most desirable seaside locations, without the uncertainty and delays often associated with the planning process.

Opportunities such as this are rarely available within Saundersfoot village, making early viewing highly recommended.

Request Further Details

Or arrange a viewing