Search Properties

West Hook Road, Haverfordwest, SA62 4LS

Haverfordwest

£485,000 Guide Price

Department:
Sales
Reference No.:
30204034
Postcode:
SA62 4LS
Type:
Detached House
Availability:
For Sale
Bedrooms:
4
Bathrooms:
2
Receptions:
1
Tenure:
Freehold
Location:
Haverfordwest
Price:
£485,000 Guide Price

Property features

  • Comprehensively renovated throughout to a high standard, offering a stylish, move-in-ready home.
  • ⁠Impressive open-plan kitchen leading into a bright dining/sun room, ideal for modern living and entertaining.
  • Flexible four-bedroom layout, including a principal bedroom with en suite and additional WC upstairs.
  • South-westerly facing rear garden, integral heated garage with electric roller doors, and ample off-road parking.

Summary

Situated in the popular village of Hook, just outside Haverfordwest, this beautifully presented four-bedroom home has been comprehensively renovated by the current owners to an exceptional standard. The property now offers stylish, modern living throughout, finished with great attention to detail and ready for immediate occupation.

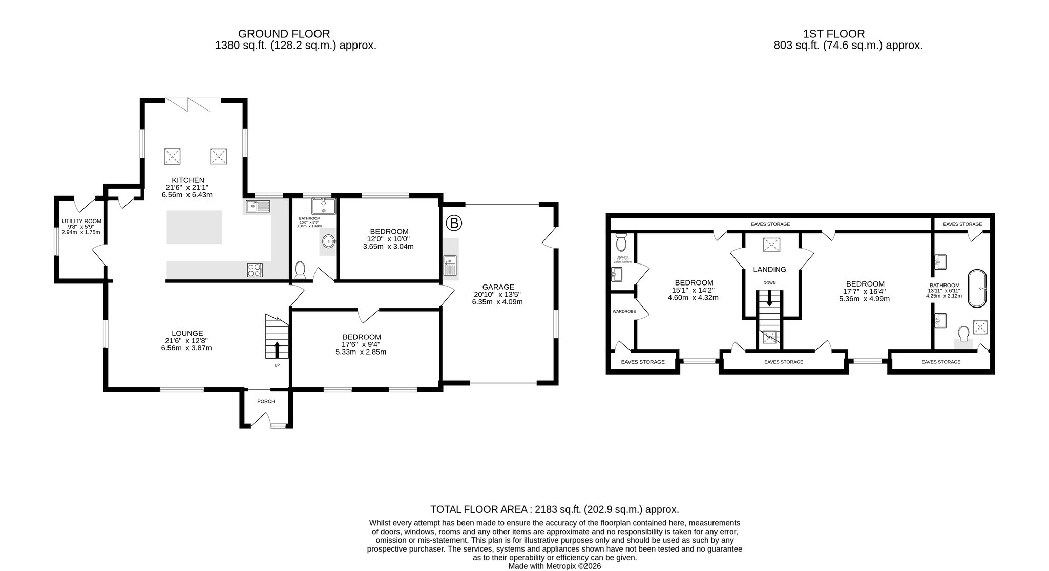
The ground floor provides a well-designed and versatile layout, beginning with a welcoming lounge that offers a comfortable space to relax. To the rear, the heart of the home is undoubtedly the impressive kitchen, which flows seamlessly into a bright dining/sun room area. This open and sociable space is ideal for both everyday family life and entertaining, with plenty of natural light enhancing the overall feel. A separate utility room adds further practicality, while two well-proportioned bedrooms and a contemporary family bathroom complete the ground floor accommodation.

Upstairs, the property continues to impress with two further bedrooms. The principal bedroom benefits from a stylish en suite shower room, while the second bedroom is served by its own WC. There is no shower in the main upstairs bathroom; however, it is well-appointed with a bath and twin sinks, offering a practical and attractive space.

Externally, the property enjoys ample off-street parking and an integral garage, fitted with electric roller doors to both the front and rear, as well as heating, providing excellent access and versatility. The rear garden has been thoughtfully arranged and benefits from a south-westerly aspect, featuring a combination of lawn and patio areas, making it an ideal space for outdoor dining, entertaining, or simply enjoying the afternoon and evening sun.

This is a fantastic opportunity to acquire a turnkey home in a desirable village location, combining modern finishes with a practical and well-considered layout, all within easy reach of Haverfordwest and its amenities, as well as being within walking distance of a primary school and local village shop.

Details

Entrance Porch

Lounge
21' 6" x 12' 8" (6.55m x 3.86m)

Kitchen / Dining Area
21' 6" x 21' 1" (6.55m x 6.43m)

Utility Room
9' 8" x 5' 9" (2.95m x 1.75m)

Bedroom
17' 6" x 9' 4" (5.33m x 2.84m)

Bedroom
12' 0" x 10' 0" (3.66m x 3.05m)

Shower Room
10' 0" x 5' 6" (3.05m x 1.68m)

First Floor Landing

Bedroom
15' 1" x 14' 2" (4.60m x 4.32m)

En Suite WC
6' 7" x 3' 2" (2.01m x 0.97m)

Bedroom
17' 7" x 16' 4" (5.36m x 4.98m)

En Suite Bathroom
13' 11" x 6' 3" (4.24m x 1.91m)

Garage
20' 10" x 13' 5" (6.35m x 4.09m)

Floor Plans

EPC

Request Further Details

Or arrange a viewing